
Addis Ababa Golf Club
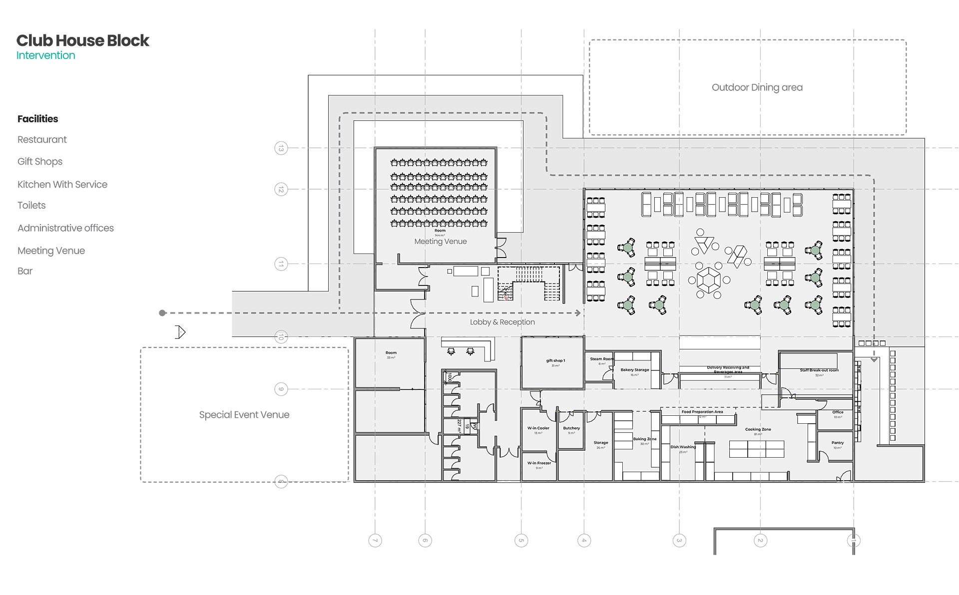
The vision for the renovation project at Addis Ababa Golf Club encompasses transforming the existing facilities, including hotel rooms, a bar, a restaurant, a gym, and a small cabin, into a modern and luxurious space that offers an exceptional experience for club members and guests. The project aims to elevate the overall ambiance, functionality, and aesthetic appeal of the facilities, creating an inviting and memorable environment that aligns with the club’s prestigious reputation and caters to the diverse needs of its clientele.
Category
Recreational
Project Type
Service
Built-up Area
9834 sqm
Building Level
G - G+3
Lead Architect
Betsegaw Ayenew
Location
Addis Ababa, Ethiopia
Date
Feb 11, 2024
Client
6M Construction









































